Averett University Student Center + Dining
The student center aims to attract more students to this former “commuter” campus by providing them with a variety of spaces and activities that build interaction and community.
Project Details
- Client: Averett University
- Location: Danville, VA
- Scope: New Construction
- Completion: 2006
- Size: 41,860 SF
The 41,000 SF Student Center at Averett University provides students with a central gathering place to exchange ideas and develop the personal, professional, and academic relationships so integral to collegiate life. Outside of these benefits, the student center aims to attract more students to this former “commuter” campus by providing them with a variety of spaces and activities that build interaction and community.
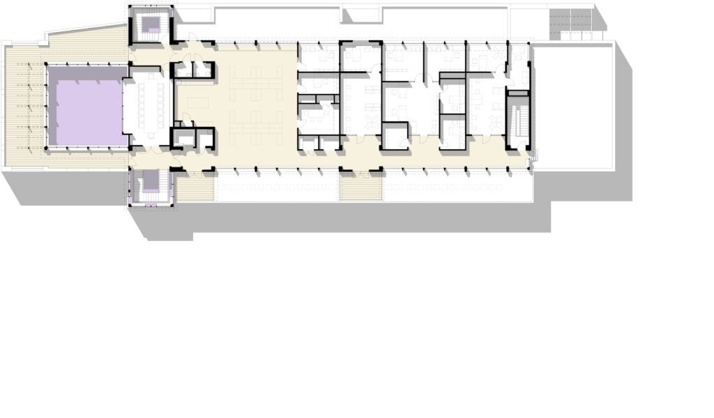
The Student Center contains amenities on four levels, including a coffee shop, convenience store, game room, TV room, and computer lab. The building also features a central dining facility, which features a 300-seat, multi-purpose, state-of-the-art “performance kitchen” and other dining spaces, such as an outdoor patio with cafe tables and a rooftop terrace.
The Student Center also provides a centralized location for Averett’s administration offices, career services center, and a one-stop location for all student activities and leadership organizations.
The student center creates new places for the people of Averett - students, faculty, and staff - to find together shared experiences, support, love, nurture, and friendships that last for life.
Collaborators
MEP Engineering: 2rw Engineers
Structural Engineering: Fox & Associates
Civil Engineering: Land Engineering
Landscape Architecture: Siteworks
Interior Design: Bagby Planning & Design
Contractor: Blair Construction
Project Photography: Virginia Hamrick
Awards Received
- Inform Design Award of Honors for Landscape Architecture, AIA Virginia
- Merit Award, AIA Committee on Architecture for Education (CAE)
- Merit Award for Excellence, AIA Central Virginia
- Facility Design Award of Excellence, Association of College Unions International
- Merit Award for Excellence in Architecture for a New Building, Society for College and University Planning


















