Charlottesville Middle School
As part of the city’s ongoing quest for greater equity, the Charlottesville City Schools Reconfiguration will improve student experience across the district, create 21st century learning environments, and improve access to wrap around services for the city’s most vulnerable families.
Project Details
- Client: Charlottesville City Schools
- Location: Charlottesville, VA
- Scope: Renovation + Addition
- Completion: 2025
- Size: 180,963 SF
- Performance: Pursuing LEED Gold | EUI 23 kBTU/sf/year (modeled) | 55% reduction (regional CBECs 2003 K12 School baseline)
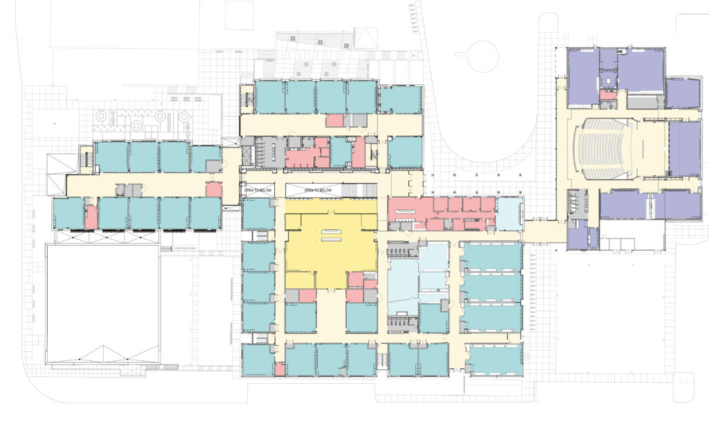
Charlottesville Middle School is an integral part of the larger Charlottesville City Schools grade-level reconfiguration effort. Previously, Walker Upper Elementary School housed the city’s fifth and sixth grade students and Buford Middle School housed the city’s seventh and eighth grade students. The main goals of the reconfiguration project are to: 1) bring sixth grade to the Buford site, 2) distribute fifth grade to the neighborhood elementary schools, and 3) consolidate early childhood programs at the Walker site.
In addition to the need for more capacity, the existing 1966 Buford Middle School buildings required serious updates to stay operational and compliant with building codes. A challenging site with over 50’ of elevational change and disconnected buildings contributed to accessibility problems and counterintuitive points of entry. Additionally, aging buildings with maintenance issues and high student turnover (50% each year) have resulted in learning environments that work against educators, not with them.
The design maximizes the existing assets of the school (including the right-sized auditorium, media center, and cafeteria) and supplements them with new construction to accommodate enrollment growth and 21st-century learning. Strategic additions provide more academic space, replace the gym and athletics wing, and expand the stage to an appropriate size for performing arts needs. A new building envelope and windows, a photovoltaic array, and a geothermal well system improve energy efficiency and bring more natural light into the building. Finally, this design brings the entire school under one roof, creating a secure campus that encourages student choice, socialization, and collaboration.
Collaborators
MEP Engineering: CMTA
Structural Engineering: Springpoint Structural
Civil Engineering: Timmons Group
Landscape Architecture: Waterstreet Studio
Environmental Graphic Design + Wayfinding: Iconograph
Contractor: Nielsen Builders
Additional Drawings

Axonometric
Community Engagement


























