 
															Clemson University Core Campus Complex
Clemson University’s re-imagination of its core campus precinct includes three student residence halls, residential and retail dining, and strategic integration of academic space to create a vibrant cross-section of campus life.
Project Details
- Client: Clemson University
- Location: Clemson, SC
- Scope: New Construction
- Completion: 2016
- Size: 260,000 SF
- Performance: LEED Silver
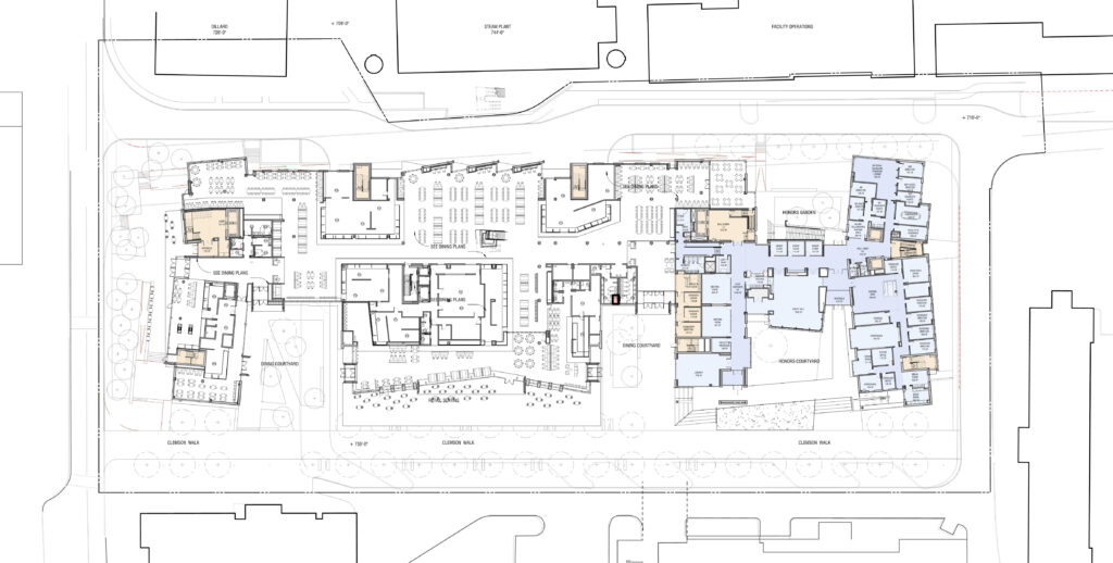
Following a decision to demolish and replace three major buildings in the middle of campus, Clemson University sought to fundamentally re-imagine the entire Core Campus precinct. The Core Campus Study was intended to answer the question: How might forward-looking approaches to housing, academic, dining, and student life programs be combined into an innovative and dynamic mixed-use center?
To solve this problem, VMDO worked in concert with Stevens & Wilkinson Architects and Sasaki Associates to develop a clear and engaging design for the Core Campus precinct. Programming outlined approximately 260,000 square feet of new and replacement space within the precinct, including three residence halls, residential and retail dining, and strategic doses of academic space. The project’s guiding design principle was to create a vibrant cross-section of campus life that captures the physical manifestation of the Clemson experience.
The design strategy balanced building and landscape through tree-lined parkways, residential courtyards, shady café terraces, and lawn areas. Landscape divides and joins program space, creating a dynamic center for student activity. The enhanced residential dining component includes programming for demonstration cooking spaces, sustainable awareness initiatives, scatter-style serveries, grab n’ go options, and retail dining options.
The housing design consists of suite style housing that accommodates 700 beds. The configuration of units and open student spaces is designed to support a variety of living-learning communities. Dynamic learning areas – including group meeting rooms, distance learning areas, and faculty support spaces – foster collaborative learning and student engagement.
The overall plan fits very well with the Campus Master Plan, and has embellished it in a way that we could never have otherwise articulated. The program was very challenging, but through innovative problem-solving and tireless interaction, the team has taken the complex goals of the University and has fashioned a vision that has taken root.
Our vision was to create an environment in which staff, students, and faculty could work and live in close proximity, while still providing boundaries and separation to allow for privacy and independence. The architects achieved this by creating separate zones and then creating visual and conceptual linkages between them. Much of the success of this approach lies in the careful balancing of transparency and privacy in the design of sightlines and in their choice of glass and other materials.
Collaborators
Partner Architects: Stevens and Wilkinson and Sasaki
MEP Engineering: Stevens and Wilkinson
Structural Engineering: Stevens and Wilkinson
Civil Engineering: Stevens and Wilkinson
Landscape Architecture: Sasaki
Contractor: Whiting-Turner
Project Photography: Alan Karchmer and Jonathan Hillyer
Additional Drawings

Site Overview

Level 1 Axonometric

Level 2 Axonometric

Honors College Axonometric
Read More
Awards Received
- Design Award for New Construction, AIA South Carolina























