John Handley High School
The Handley legacy focuses on the heritage of the historic school as a central civic institution in partnership with regional programs and cultural pageantry.
Project Details
- Client: Winchester Public Schools
- Location: Winchester, VA
- Scope: Renovation + Addition
- Completion: 2010
- Size: 296,000 SF
Designed by Walter McCornack in the early 1920s, John Handley High School is an important civic institution for the Winchester community. The majestic landscape designed by the Olmsted Brothers and powerful façade of the school make a promise of a great education to Winchester’s 9th – 12th graders and the surrounding community.
Over time a state of disrepair and a series of unfortunate additions made it difficult for the educators and the building to deliver on that promise. VMDO designed a series of renovations and additions to accommodate enrollment growth while maintaining the building’s status on the National Register of Historic Places. Constructed in multiple phases while the school was continuously occupied, the new design preserves the building’s historic elements with restoration aided by tax credits.
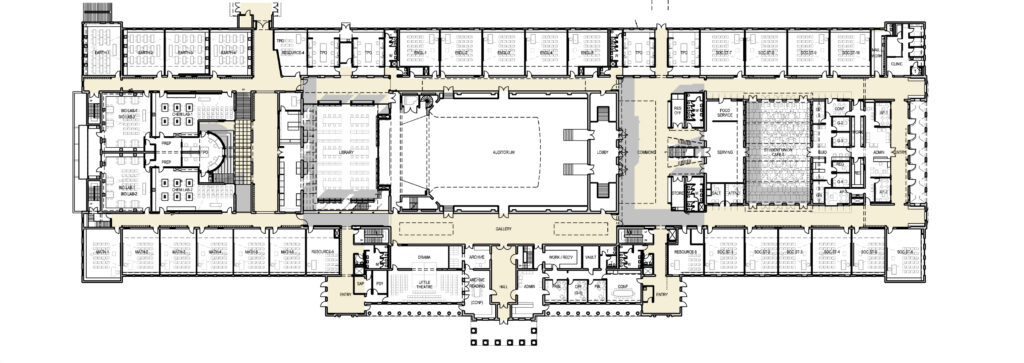
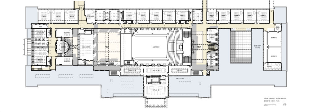
The design introduces better visibility to the outdoors and along main paths of circulation without compromising the historic character of the original building. The original gymnasium space at the heart of the school was repurposed as a lantern-like library. Former courtyards that were enclosed became a new student commons and a student union / café. Increased transparency in the roof over these courtyards allows abundant daylight to fill these popular student dining spaces. The main corridor in the original building is lined with replicas of great works of art from the Smithsonian that were evacuated to Handley during World War II. The restored theater pays homage to one of Handley’s most famous graduates, Patsy Cline.
For our students, this is the place, the very spot, where they walk into life and cross the threshold into their journey along life’s way. And, as they pass in between those columns, they see our community, the Shenandoah Valley, the Blue Ridge Mountains, and truly begin to look towards the future with hope, inspiration, potentials to be fulfilled, and the realization of dreams.
Collaborators
Partner Architect: Reader & Schwartz
MEP Engineering: B2E Engineers
Structural Engineering: Structural Concepts
Civil Engineering: PHR+A
Contractor: Howard Shockey & Sons
Project Photography: Prakash Patel
Additional Drawings

Axonometric

Phasing Diagram
Read More
Awards Received
- Honor Award, AIA Central Virginia
- Honorable Mention, Learning by Design
- Platinum Design Award, Virginia School Boards Association
- People's Choice Award, Virginia School Boards Association
- Distinguished Design Award, Virginia School Boards Association


















