Liberty University Indoor Practice Facility
Liberty University’s Indoor Practice Facility provides a state-of-the-art training facility with a full-size artificial turf field to support multi-year practice for football and other field sports.
Project Details
- Client: Liberty University
- Location: Lynchburg, VA
- Scope: New Construction
- Completion: 2017
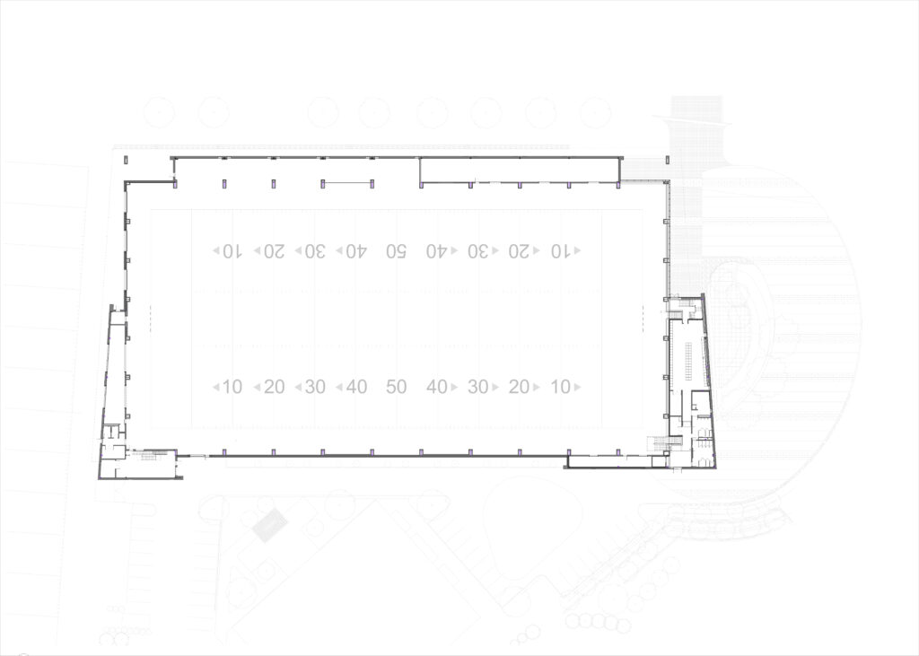
- Size: 93,000 SF
Liberty University’s Indoor Practice Facility provides a state-of-the-art training facility with an artificial turf field that supports multi-year practice for football and other field sports. Located at the main entry corridor to the university, the facility offers a modern design with a tiered long-span roof structure that steps down to minimize its scale and respond to the pedestrian context.
The Field house’s transparency, openness, and natural daylighting create a light-filled “outdoor room” that contributes to feelings of health and wellness for student athletes. Vertical windows along the entry corridors encourage passersby to peer inside and feel connected to the sport. The facility incorporates overhead aluminum and glass doors that connect to the full-size artificial turf practice field outside. The front and back facades are inverses of one another offering a balance of extroverted visibility and concentrated focus for student athletes. Clerestory windows, skylights, and curtain wall openings enhance daylighting and offer views of the football stadium and natural setting beyond. The facility also houses offices, restrooms, amply storage, and lockers for visiting football teams playing at the nearby stadium.
The building pushes the boundaries of what is often expected in field house design by stepping down into the landscape while maintaining full functionality for training. The facility’s ample daylighting and views create an expansive, elevated experience for student athletes. In addition to hosting training for multiple field sports, the facility, with its generous plaza, can support pre-game events, pep rallies, and community events, – maximizing utility while supporting community connections.
Collaborators
MEP Engineering: Southern Air
Structural Engineering: Fox & Associates
Civil Engineering: PHR&A
Landscape Architecture: Siteworks
Contractor: CMA
Project Photography: Lincoln Barbour
Additional Drawings

Exterior Rendering

Aerial Rendering
Awards Received
- Architectural Showcase, Athletic Business Showcase











