Liberty University Library + Academic Commons
Pulling from three surrounding student housing precincts, Liberty University’s Library creates a communal living room for students - a central gathering point for learning, studying, and socializing in a flexible, technology-rich environment.
Project Details
- Client: Liberty University
- Location: Lynchburg, VA
- Scope: New Construction
- Completion: 2014
- Size: 170,000 SF
As the primary focus of the first phase of Liberty University’s new master plan, the Library and Academic Commons is a vibrant hub of student activity situated at the spatial and social heart of campus. Compared to prototypical libraries of the past, Liberty’s flagship library reverses the notion of book storage as the central motive of a library’s design in favor of a user-centric layout that places student activity in the foreground. The building provides a wide range of flexible spaces that encourage more informal groupings. The Library is also strategically organized to provide a range of scales for studying, from quiet, individual zones, to medium sized lounges, to the large Learning Commons and public gathering areas.
Customer service is a major component of the physical design of the building, dismantling barriers between users and library staff. This active model of assistance, inspired by the concierge-style service found in the hospitality industry, transforms research from a once-daunting chore into an interactive and enriching process.
A state-of-the-art Automated Storage and Retrieval System (ASRS), found in a handful of libraries in the nation, allows Liberty to house their growing collection while using just 1/7th of the space needed for traditional shelving. To facilitate browsing, the library displays approximately 67,000 of the newest and most frequently used materials in a four-story book tower and two-story reading room. This storage strategy allows for more space and openness, putting academic and social activity on display.
VMDO was hired to design a world-class library ... for a university undergoing a major campus transformation and explosive growth. They served as expert listeners and facilitators in uncovering not only our library’s design but also how it related to our campus and our customers. VMDO sought out connections at the most personal level while weaving together the needs of the many stakeholders involved in a project that will impact thousands of students, faculty, and staff for years to come.
Collaborators
MEP Engineering: Dunlap & Partners
Structural Engineering: Fox & Associates
Civil Engineering: Perkins & Orrison
Environmental Graphic Design + Wayfinding: Iconograph
Programming: brightspot strategies
Project Photography: Alan Karchmer and Tom Daly
Additional Drawings

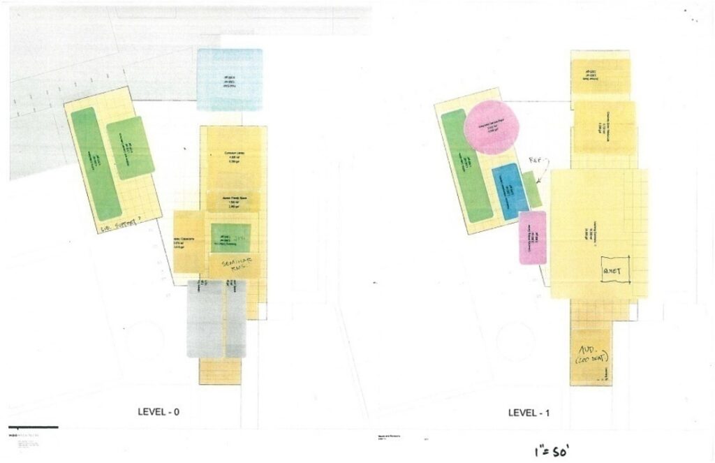
Programming

Academic Commons Axonometric

Integrated Service Point Axonometric
Read More
Awards Received
- Honorable Mention - Interior Design Excellence Award, IIDA Virginia / West Virginia
- New Landmark Libraries Honorable Mention, Library Journal
- Bronze Award for Higher Education, Brick in Architecture
- Honor Award for Design Excellence in Interior Architecture, AIA Central Virginia























