Marlow Heights Community Center
The new Marlow Heights Community Center re-imagines an existing recreation site through a dynamic community engagement process in order to maximize local resources, provide flexible programming, and improve park amenities.
Project Details
- Client: Maryland-National Capital Park and Planning Commission
- Location: Marlow Heights, MD
- Scope: New Construction
- Completion: 2025
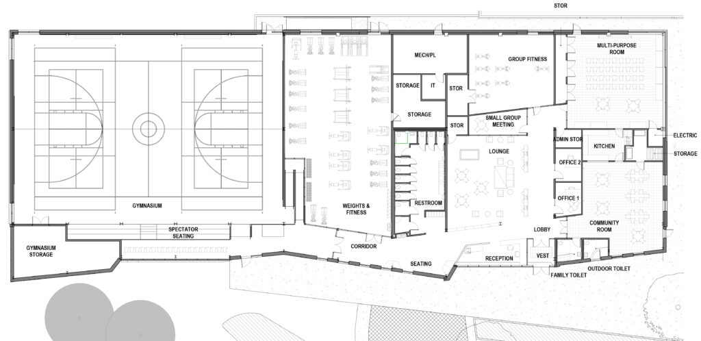
- Size: 22,500 SF
- Performance: Pursuing LEED Silver; EUI 26 kBTU/sf/year (modeled) | 35%reduction (regional CBECs 2003 Public Assembly -Recreation baseline)
The product of a dynamic community engagement process, the new Marlow Heights Community Center creates a vibrant destination for flexible year-round programming, maximizes local resources, and improves park amenities. Located in Prince George’s County, Maryland, the new building replaces an existing 11,500 sf community center and serves as a welcoming beacon to neighbors and visitors alike.
The siting of the building allowed the existing community center to remain open during construction without disrupting the various outdoor park amenities. The new building’s location in the old parking lot maximizes open park space and improves the views and connection to the outdoors. The compact design of the center is economic, efficient, and adaptable to the different programming needs. Envisioned as a hub for community gatherings and fitness, the facility includes a gymnasium, fitness areas, and several multipurpose spaces of varying sizes. The site amenities include a preserved playground, sports courts, a splashpad, and a walking trail.
The strategically placed translucent and transparent glazing provides ample daylighting for the main interior spaces and diverse visual connections between interior and exterior spaces. The new Marlow Heights Community Center represents a dedication to building community and supporting the broader park ecosystem in Prince George’s County.
Collaborators
MEP Engineering: CMTA
Structural Engineering: Delon Hampton
Civil Engineering: Delon Hampton
Landscape Architecture: LSG Landscape
Contractor: MCN Build
Project Photography: Tom Holdsworth
Additional Drawings

Level 1 Floor Plan












