Mountain View Upper Elementary School
The first ground-up school to be built by Albemarle County Public Schools in almost 30 years, Mountain View Upper Elementary School will serve the county’s southern feeder pattern with dynamic, healthy educational spaces.
Project Details
- Client: Albemarle County Public Schools
- Location: Charlottesville, VA
- Scope: New Construction
- Completion: 2026
- Size: 72,500 SF
- Performance: Pursuing LEED Gold; Net-Zero Energy Ready | EUI 21 kBTU/sf/year (modeled) | 58%reduction (regional CBECs 2003 K12 School baseline)
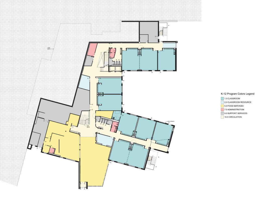
Mountain View Upper Elementary School will be the first new ground-up school to be built by ACPS in almost 30 years, serving Albemarle County’s southern feeder pattern and reducing chronic overcrowding. Adjacent to the existing Mountain View Elementary, the new three-story school occupies a gently sloping ,16-acre site and enjoys magnificent views to Carters’ Mountain. The compact, high-performance building is designed to be net-zero energy ready, and offers abundant daylight and views to nature, promotes health and well-being, and supports the diverse needs of every student.
The fully accessible building steps down with the site, offering ground-level access on two floors; the northern main entry / car drop-off is located on the mid-level and the southern dining entry / bus loop accesses the lower level. A North-South circulation spine with open stairs connecting all floors serves whole-school shared spaces including the administration and health suite, a competition gymnasium, library, student services, and the dining commons which opens to a covered outdoor dining terrace and play spaces beyond.
Extending from the main spine are two three-story learning wings forming a learning courtyard that opens to playgrounds to the east. Ground-level classrooms include doors directly to the courtyard, where terraced seating and landscape support outdoor learning and play. Walking and biking paths create a site circuit that extends to the adjacent neighborhood, connecting rain gardens, a forest preserve, soccer field, and a native meadow.
Collaborators
MEP Engineering: CMTA
Structural Engineering: Springpoint
Civil Engineering: Timmons Group
Landscape Architecture: Waterstreet Studios
Environmental Graphic Design + Wayfinding: Iconograph
Contractor: Nielsen Builders




















