Sweet Briar College Cochran Library
VMDO’s addition to Ralph Adams Cram’s library aims to respect the architect’s vision for the building by strategically locating new programs around the original core of the structure while preserving its historically significant elevations and major public spaces.
Project Details
- Client: Sweet Briar College
- Location: Sweet Briar, VA
- Scope: Renovation + Addition
- Completion: 2014
- Size: 54,000 SF
Cochran Library was one of the first buildings constructed as part of the original master plan designed by notable collegiate architect Ralph Adams Cram. Its handsome central reading room remains the only fully intact Cram-designed interior space on campus.
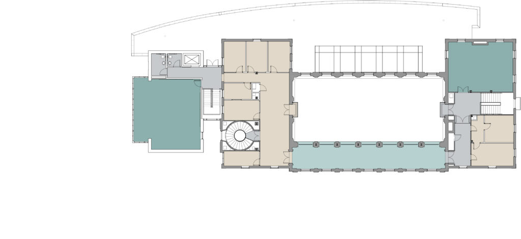
VMDO’s addition to the library respects Cram’s vision for the building by strategically locating new programs around the original core of the structure and preserving its historically significant elevations and major public spaces. “Liberating” the library from a cramped 1965 addition that buried much of Cram’s design, the addition reestablishes sight lines to campus, enhances daylighting, and highlights the original architecture while preserving the building’s continued use as a library. The modern yet complementary addition employs traditional materials featured in the campus context – including cast stone, brick, and slate – ensuring that the historic design of the library remains dominant.
Compact shelving, hidden below the new west terrace addition, pulls the bulk of the collection out of the core of the historic building, opening up the original architecture and restoring the grandeur of the 1929 spaces. A vaulted gallery along the front of the entry façade has been reopened as a 24-hour study area with student art adorning the arcade’s niches.
Completed over a decade-long collaboration, the addition of Cochran Library complements a highly esteemed building and propels the College into the evolving landscape of learning space design.
The brilliance of the design and material choices that revealed the segments of the historic Cram building lost for decades due to a poor addition project in the 1960’s has established the newly renovated library facility as the most popular and effectively used building on campus. Through the collaboration with VMDO, Sweet Briar achieved its goals of a modern, welcoming, flexible and functional library that will serve us for the next 100 years.
Collaborators
MEP Engineering: Lawrence Perry & Associates
Structural Engineering: Fox & Associates
Civil Engineering: Hurt & Profitt
Interior Design: Beth Rooks Design
Contractor: CL Lewis & Company
Project Photography: Alan Karchmer
Historic Photography

Exterior Historic Photo

Reading Room Historic Photo
Read More
Awards Received
- Gabriella Page Award for Outstanding Preservation, Preservation Virginia
- New Landmark Libraries Honorable Mention, Library Journal
- Library Design Showcase, American Libraries























