The George Washington University Thurston Hall Renovation
With the intent to draw students out of their rooms and into opportunities to live, learn, and develop as a community, the renovation of Thurston Hall integrates academic and social experiences around central community spaces with views, clear orientation, and destinations for collaboration.
Project Details
- Client: The George Washington University
- Location: Washington, DC
- Scope: Renovation
- Completion: 2022
- Size: 209,361 SF
- Performance: LEED Platinum | EUI 62 kBTU/sf/year (measured) | 44% reduction compared to a LEED ASHRAE 90.1-2010 Appendix G baseline
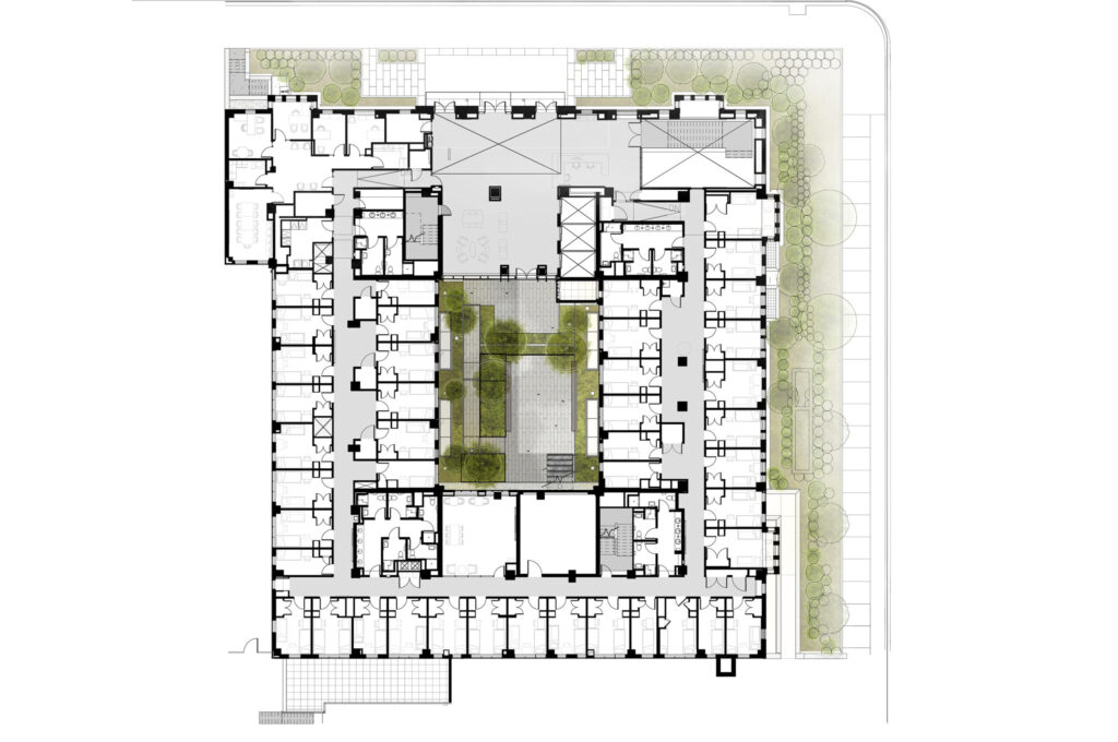
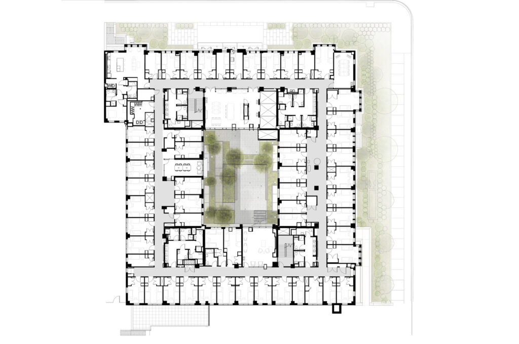
As the largest first-year residence hall at The George Washington University, Mabel Nelson Thurston Hall is critical to creating a sense of identity and community for GW’s Foggy Bottom campus. Inspired by GW’s student-centered mission to “Spark, Energize, Develop, and Belong,” the design connects students to the urban setting, enhances social and academic experiences, and prioritizes student success and well-being.
The ambitious renovation removes the south-central portion of 5 stories of Thurston Hall, enhancing the building’s courtyard and access to natural light. This bold and transformative move stems from the client’s goal to de-densify the building and provide more flexible, safe, and healthy places for learning and gathering. “Found” spaces, like the former central lightwell, are transformed into flexible, programmable spaces such as a light-filled courtyard that promotes the development of a vibrant, engaged, and inclusive community.
Residents and visitors alike are greeted with an open and inviting entry along F Street that flows into a terraced courtyard space. Organizing the building’s public spaces as “lanterns” around the courtyard brings natural light and views to all the primary gathering spaces of the building. Outdoor terraces serve as casual hang-out spots but are also a fitting setting for receptions and public events. Double-height residential lounges facing the courtyard amplify light penetration and contribute to a higher sense of community and security through visual connection. The design’s central courtyard brings the rhythms of the District into the heart of the building and provides opportunities for students to engage with each other and DC’s urban context.
Thurston Hall’s renovation focuses on providing a communal, healthy, and positive first year experience by providing opportunities for multiple scales of connection through daylighting, view, and acoustics. Providing a setting that facilities student gathering, lifelong friendships, and a sense of belonging will equip students for their future at GW and beyond.
VMDO was unanimously selected to be our partner for the project after demonstrating a design solution that presented: a deep understanding of what makes a dynamic, student-focused residential community; a positive alignment with our guiding principles and mission to “Spark, Energize, Develop, and Belong”; a protective sensitivity to the historic building and urban context; and an overall sense of creativity and purpose in their approach to making every component of the project invite robust student interaction.
A student’s living environment impacts the success that they will have at college. Thurston Residence Hall provided the opportunity to design an environment that prioritized all of the factors that contribute to student success. VMDO understood this opportunity and then delivered.
Collaborators
MEP Engineering: CMTA
Structural Engineering: Fox & Associates
Civil Engineering: Wiles Mensch
Landscape Architecture: O’Shea-Wilson Siteworks
Interior Design: smbw
Environmental Graphic Design / Wayfinding: Iconograph
Contractor: Clark Construction
Project Photography: Alan Karchmer and Tom Holdsworth
Additional Drawings

Parti Diagram
Sustainability

Residence halls are a delicate balance between performance and experience; renovations of these spaces are a special performance challenge because of changes in code requirements for ventilation. Thurston Hall’s renovation improves air quality, building performance, and resilience through an integrated approach to building systems, landscape and design. The project is certified LEED Platinum.

The 2019 Healthy Minds Study (HMS) shows that today’s undergraduate and graduate students are suffering high levels of anxiety, stress, and depression, conditions that can be directly affected by the spaces in which they live, work, and study. In addition to providing a crucial place to rest, student housing is where a sense of personal and university community takes root. Social isolation is one of the major health risk factors facing today’s students and is an area where the built environment can have a significant impact. Thurston Hall’s renovation focuses on providing a communal, healthy, and positive first year experience by creating communities at a range of scales, designing for inclusion, and providing connection through daylighting, views, and acoustics.
Read More
Additional Resources
- Video - Reimagining Thurston Hall
- Video - Thurston Hall Animated Flythrough
- Video - Thurston Hall Under Construction
- Video - GW Documentary: History of Thurston Hall
- Architectural Record - VMDO Architects Overhauls a Century Old Student Residence Hall at George Washington University
- Fast Company - Renovating this 1930s Doughnut Building Meant Losing Space but Gaining Natural Light
- Green Building & Design - VMDO Architects Brings Nature and Color to George Washington University
Awards Received
- 2024 - National Architecture Award, AIA
- 2024 - COTE Top Ten Award, AIA
- 2024 - National Housing Award, AIA
- 2023 - Award of Merit, AIA Virginia
- 2023 - Best Renovation of Existing University Housing, Student Housing Business Innovator Awards
- 2023 - Award in Historic Resources, AIA DC
- 2025 - Rise to the Challenge Award, USGBC


























