Truesdell Elementary School
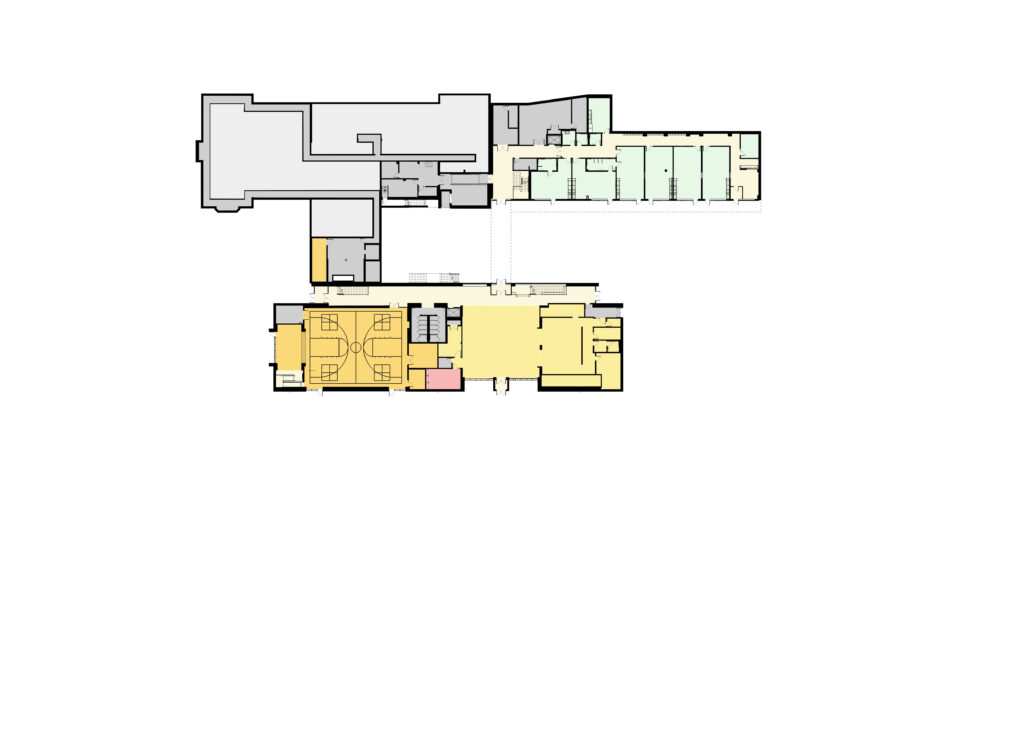
Located in Ward 4 in the heart of DC’s Brightwood Park neighborhood, the modernization of Truesdell Elementary School consists of three distinct interventions: renovation of the historic building, replacement of an existing building, and a modern, new addition.
Project Details
- Client: DC Department of General Services and DC Public Schools
- Location: Washington, DC
- Scope: Renovation and New Construction
- Completion: 2025
- Size: 112,770 SF
- Performance: Pursuing LEED Gold; Net-Zero Energy Ready | EUI 0 kBTU/sf/year (modeled) | 100%reduction (regional CBECs 2003 K12 School baseline)
Located in Ward 4 in the heart of DC’s Brightwood Park neighborhood, the original Truesdell Elementary School consisted of two existing buildings on a naturally sloping, urban site. The campus also serves a diverse population of students locally, with over 300 emerging bi-lingual speakers. Core to the modernization is the provision for community spaces that unify the components of the campus and create a shared sense of placemaking. The Design-Build modernization renovates the existing 1920s-era building, replaces the 1960s-era addition, and constructs a second addition for dedicated specials programming.
The design approach situates the three buildings around a central outdoor courtyard space, maximizing internal connections while preserving a plethora of secure site area for learning and play. The new additions harmonize with the original historic building in massing and materiality, with light connections in the form of glassy corridors that tie the design components together and provide a clear path for circulation. The massing approach also takes advantage of the site’s optimal solar orientation, sloping the new addition’s roof for photovoltaic exposure and bringing maximum daylight into the courtyard and its surrounding interior spaces.
The modernization also reflects the District’s ambitious clean energy goals, with a Net-Zero energy ready approach and pursuing LEED Gold certification. A focus on community building for a diverse student population creates a unified and connected design solution even greater than the sum of its parts.
Collaborators
MEP Engineering: CMTA
Structural Engineering: SK&A
Civil Engineering: Wiles Mensch
Landscape Architecture: Natural Resources Design
Environmental Graphic Design + Wayfinding: Iconograph
Contractor: Coakley & Williams Construction + Blue Skye Construction
Project Photography: Alan Karchmer
Additional Drawings

Programming Axonometric

North Elevation

South Elevation
Awards Received
- Sustainability and Resiliency Excellence Award, American Society of Civil Engineers National Capital Section
























