University of Virginia School of Data Science
The University of Virginia’s School of Data Science is a cutting-edge facility at the forefront of the transdisciplinary field of data science. As the first academic installment on the campus’ Emmet-Ivy landscape corridor, the groundbreaking center is also set to define the future of the university’s development.
Project Details
- Client: University of Virginia
- Location: Charlottesville, VA
- Scope: New Construction
- Completion: 2024
- Size: 56,545 SF
- Performance: Pursuing LEED Gold; EUI 45 kBTU/sf/year (modeled) | 59%reduction (regional CBECs 2003 College/University baseline)
Data Science is an interdisciplinary field that uses scientific methods, processes, and systems to extract knowledge and insights from data. Guided by goals to further discovery, share knowledge, and make a positive societal impact, the School of Data Science sets the academic tone for the University of Virginia’s Emmet-Ivy Corridor development. The building, a collaboration between VMDO and Hopkins Architects, occupies a prime corner site with an amphitheater and a retention pond between the main façade and the street.
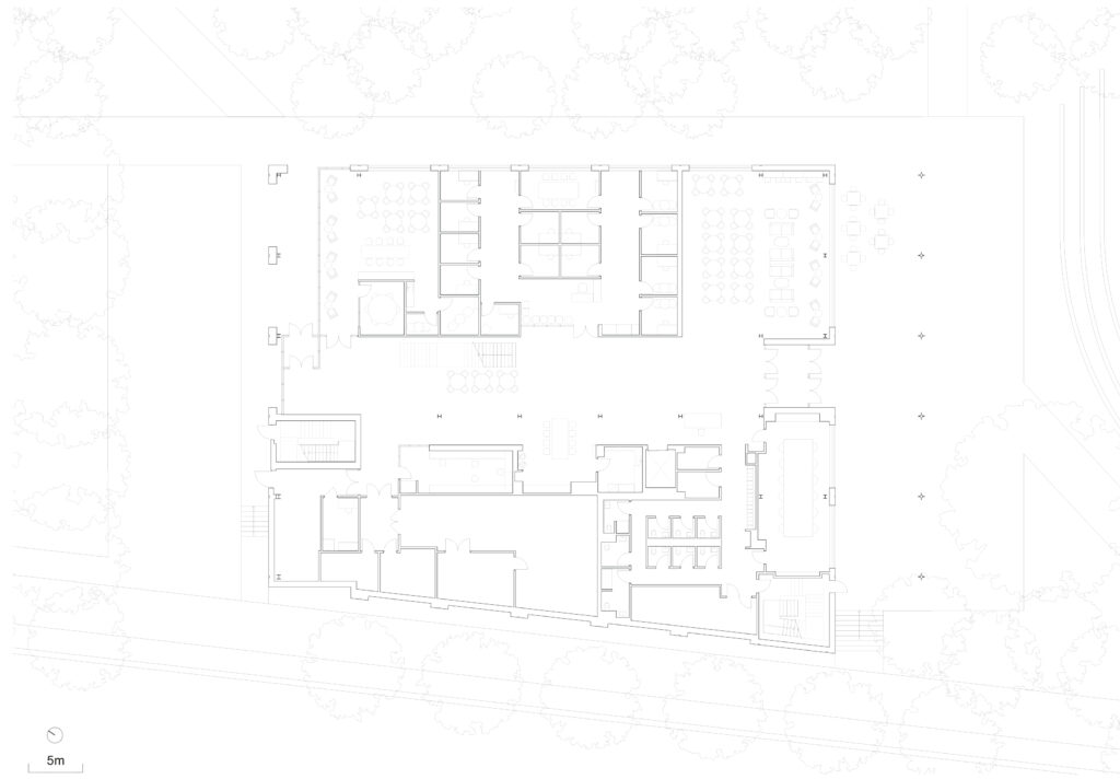
The building encourages the connection and community-building inherent to the burgeoning scientific field. In addition to four active learning classrooms, the new facility includes faculty offices, meeting spaces, and research areas that support the new field of study. A double-height interior space allows for the hosting of lectures and other events. The upper story is a completely glazed lantern that provides dramatic views of the surrounding campus.
In keeping with the University’s 2030 sustainability goals, a green roof is incorporated at the fourth floor to mitigate heat gain from the south. Private offices are designed with operable windows that open to increase natural ventilation. Despite the cutting-edge nature of its program, the building seamlessly connects to the historic Grounds through material choices and coloring. The project is a significant step in defining the next chapter of the University of Virginia by supporting its newest forms of academic program and encouraging its mission for transdisciplinary interaction across the student body.
This building and the program are a realization of the tenets of the development principles for the Discovery Nexus and will uphold the promise for the vitality of the new Emmet/Ivy District. The integrated landscape, with the storm water pond, amphitheater, and promenade providing civic connectivity, while the building provides a new model for active teaching, putting data science on display. Living up to its aspirational mission, this “School Without Walls” is building community by enabling collaboration and innovation in a state-of-the-art academic facility.
The building is designed to embody what experts at UVA believe data science is. We have this impressive open atrium with exposed steel and a unifying stair along with an interactive data sculpture. The growth of the School of Data Science shows how much the University believes data science will change the world.
Collaborators
Partner Architect: Hopkins Architects
MEP Engineering: Arup
Structural Engineering: Arup
Civil Engineering: VHB
Landscape Architecture: Dumont Janks
Environmental Graphic Design + Wayfinding: Iconograph
Data Sculpture Design: SOSO Limited
Contractor: Gilbane Building Company
Project Photography: Nic LeHoux, Tom Holdsworth, and Sanjay Suchak
Sustainability

Sustainability Diagram



























