Woodrow W. Bolick Advanced Technology and Student Success Center
As a vibrant hub for academic life, PVCC’s new educational facility includes advanced manufacturing and robotics labs, cyber-security and forensics labs, instructional spaces, administrative offices, a café, student group spaces, and improved outdoor public spaces.
Project Details
- Client: Piedmont Virginia Community College
- Location: Charlottesville, VA
- Scope: New Construction
- Completion: 2024
- Size: 45,000 SF
- Performance: Net-Zero Energy Ready | EUI 0 kBTU/sf/year (modeled) | 100% reduction (regional CBECs 2003 College/University baseline)
Piedmont Virginia Community College’s new Advanced Technology and Student Success Center is a vibrant hub for academic life that welcomes students to the Charlottesville campus. The new Bolick Center creates a campus destination that showcases PVCC’s comprehensive commitment to workforce training and career development.
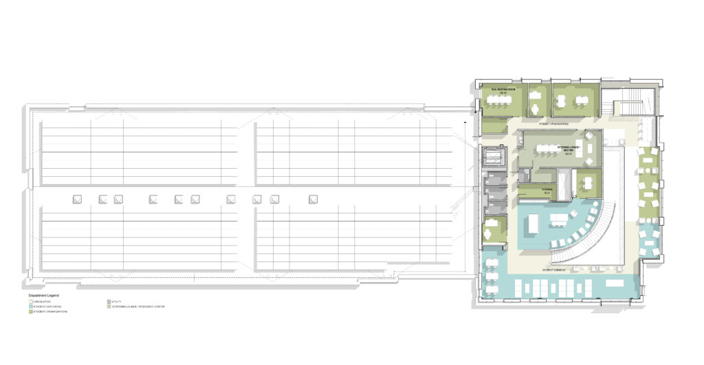
The Bolick Center is composed of three interconnected volumes: the pavilion, the portal, and the academic/advising wing. The exterior palette is a collage of both solid and visually transparent assemblies that react to views, solar orientation, and adjacent landscape spaces that support the various programs within. The portal serves as the primary vertical circulation space for the building and provides clear visual wayfinding landmarks to aid navigation to the various parts of the building. A two-story cylindrical tower acts as a focal point within the space and houses student support specialists that will guide new and enrolled students to their destinations.
The pavilion houses a large multi-purpose event space, café, student lounge spaces, student organization offices, and quiet study spaces. The two-story north bar of the Center houses the academic/advising wing, which includes manufacturing and robotics spaces, instructional spaces, study areas, and the On-Boarding Center. The On-Boarding Center provides everything a new student needs to begin their journey at PVCC and is organized into suites of rooms that integrate related personnel and functions around common resources and shared circulation.
The Woodrow W. Bolick Advanced Technology and Student Success Center represents our bold commitment to student success and the communities we serve. Today’s students - and those who attend PVCC in the future - will have access to quality programs and superior support services that lead to highly skilled jobs in high demand sectors.
As residents of Central Virginia, we live in a thriving community. As we look back to the last half century, it’s hard to imagine a greater accomplishment than the growth and success of PVCC. Since opening our doors, residents turn to PVCC to transform their lives. As we look ahead, we’re focused on elevating our college to a new level of excellence. As we expand the Workforce Development programs, we’ll raise the skill levels and increase job prospects for individuals in our community that will lead them to financial security.
Collaborators
MEP Engineering: Dunlap Partners (now Salas O’Brien)
Structural Engineering: Fox & Associates (now Springpoint Structural)
Civil Engineering: Draper Aden (now TRC)
Landscape Architecture: Hill Studio
Interior Design: Glickman Studio
Environmental Graphic Design + Wayfinding: Iconograph
Contractor: Gulf Seaboard
Project Photography: Tom Holdsworth
Additional Drawings

Programming Diagram
Sustainability

Northwest Aerial
According to the National Buildings Institute’s annual Getting to Zero report, net zero energy schools and municipal buildings have been increasing in number across the country, yet higher education facilities have tended to lag in comparison. The Woodrow W. Bolick Advanced Technology + Student Success Center is helping to set the bar for building sustainability in higher education while implementing pragmatic clean energy solutions that double as teaching tools for students.
Drawing from a menu of energy saving measures, the final building design archives an EUI of 37.6 — a 68% energy reduction compared to other buildings of its type before renewables. With the energy saving measures, like the improved thermal performance of the exterior wall, a 20% window/wall ratio, and a ground source heat pump, the building needed a far reduced PV array in order to be self sustaining.



















