Public Library Design – A Home for Civic Engagement + Learning

Jim Kovach
Where do you go to find community? Where do you go, when you want to be with other people, or by yourself to linger for a while in a place where you can engage in meaningful conversations, to learn something, to strengthen community bonds and make new friends? For many of us, these questions aren’t always easy to answer. Political and social uncertainty are reshaping the civic landscape, and in many communities, there is a noticeable lack of public spaces that meet our present-day needs and expectations. To build and sustain the long-term health of the public realm, we need convivial neighborhood places where we can gather in person to live, learn, work, and play.
In this moment of rapid change lies an opportunity for public libraries to re-establish themselves as the epicenter of community life. As stalwart public institutions primed for reinvention, libraries can play a crucial role in the building and re-building of communities. By expanding the notion of what a library can be, we can design buildings and spaces that help shape the ways we come together.
At VMDO, we are partnering with communities to embrace change. We view each library project as an opportunity to create a collaborative vision of a 21st library. Our process begins with prompting stakeholders, patrons, families and librarians to give voice to their ideas, dreams, and hopes for their project. We ask questions such as, what kind of experiences do you want to prioritize? What sort of resources do you want to promote? What sort of environment do you want to create for collaboration? For learning? For fun? What kind of library do you want to be?
What We’re Hearing
VMDO is currently working on public library projects that vary in size, budget, location, and demographics served. From Florida to Virginia to New York, we are hearing common themes in our conversations with librarians and patrons of all ages.
Unique Spaces that Fit a Range of User Needs
Libraries are prioritizing flexibility, diversity, and user optimization. The pandemic surfaced a deep need for outdoor amenities that promote gathering and socializing, and healthy indoor learning spaces that foster a sense of community. A 21st century library can be a “neighborhood living room” where people come to participate in a range of community-based activities, from meetings to lifelong learning opportunities to performances. We are seeing a growing demand for large public gathering areas like meeting rooms, performance spaces, outdoor learning spaces, and hands-on learning labs and maker spaces. There is also an increased need for learning, study, and lounge areas that can accommodate a diverse range of users designed expressly for the unique needs of children, tweens, teens, adults and retirees.
Digital Resources in Communal Spaces
The 21st century has given rise to tremendous shifts in how information is created, disseminated, and digested. The Internet, wireless computing, and touch-screen technology have all contributed to a growing expectation for information to be provided on-demand in flexible formats. Libraries are responding by incorporating digital resources in communal spaces to help users wade through the incredible amount of information that exists while fostering new methods of search and discovery. In addition to providing desktop computers for those without devices of their own, libraries are integrating technology into furnishings in learning, study, and lounge areas to support the creation and exchange of digital information. Communal spaces are also being outfitted with new tools to facilitate digital collaboration like touch tables, interactive media surfaces, and 3D printers. A modern library needs a balanced approach to mixing old with new – building a flexible infrastructure that supports the continued democratic distribution of resources while also making space for cutting-edge technologies.
Digital Services
Library staff are shifting to digital services and delivery models to meet the growing demand for comfortable, flexible, hybrid environments that can host a range of physical and digital activities. Many libraries are implementing concierge-style service points where staff and patrons work “side-by-side” to answer questions and locate resources, eliminating perceived barriers between patrons and staff. Using new technologies, libraries are also providing more self-service options by installing information kiosks and developing software applications that can be used on personal devices to navigate the building, reserve study rooms, request books, and order resources from partner libraries.
How We’re Responding
Working with our clients, we are developing innovative design strategies to respond to changing community needs and expectations with creativity and ingenuity. The core of our work is expanding the notion of what a library can be and positioning today’s public library as a community hub for the creation and exchange of information. Here are a few of the impactful strategies we’ve developed illustrated by examples from current projects.
Stitch the building and site to the surrounding community.
A library is an ecosystem of activities, support systems, resources, and social services that can be many things to many people. A one-stop-shop – a community center that also has books.
As a focal point of activity within the community, public libraries by necessity need to be designed to be welcoming and accessible to all. The renovation and expansion of the New City Library (Rockland County, NY) is conceived as a grand social intersection, with a major interior “street” serving to connect patrons to the various spaces and program offerings within. The organization of the plan promotes flexible patterns of use both during operating hours and after the library is closed: the generous main public promenade into and through the building is designed to provide effortless access to all the major public gathering and support spaces (the book collection, café, gallery, adult meeting room, children’s library and meeting room and an outdoor garden and play space, restrooms and kitchen) while also positioning intimate spaces along its edges for serendipitous use. When community demand for the various public amenities necessitates, the spaces can be made accessible after hours by managing access into adjacent library spaces.
Both the New City Library, and the soon-to-open Shenandoah County Library in Edinburg, VA establish strong ties to the communities they serve through robust catalogs of local historic and genealogical resources. Both libraries have dedicated special collections spaces and adjacent reading rooms that provide secure, climate-controlled environments to house and display the physical documents that connect people and place to local histories and traditions. These repositories of books, maps, newspapers, and yearbooks help stitch the present to the past.
Create memorable indoor and outdoor public spaces that promote education and engagement.
Our work seeks to strengthen the bonds between people and the places they live, and one way to achieve this is by helping people see with fresh eyes the wonderfully rich natural environments that they interact with daily. Common to all our buildings is a motivation to bridge the divide between inside and out; to minimize the physical and visual separation between building and site and reduce the distinction between the two. By establishing a direct line of communication between built and natural, we hope to promote the educational possibilities provided by each building’s indigenous landscape.
When the planned improvements to the Shenandoah County Library (Edinburg, VA) site are completed, visitors will be invited to explore an accessible walking trail through a native meadow habitat and discover outdoor spaces including an event lawn and reading garden, a scenic overlook, and a stargazing hillside. The renovated and expanded library building will be designed with visual connections to these outdoor spaces and openings that encourage activities to spill outside whenever possible.
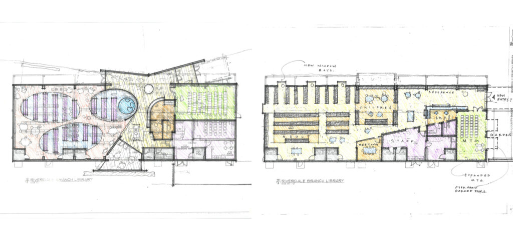
Carve new public spaces out of old, single-purpose book storage areas and introduce spaces that support a wide range of public uses.
Working with the Riverdale Branch Public Library (Fort Myers, FL), we developed a range of design solutions that focused on making efficient use of a limited amount of space. Collection size and storage, meeting and study space, improved staff accommodations and enhanced curb appeal all factored into the development of four strategies that range in cost, operational impact, and balance between user space and capacity to house resources. By reducing the footprint of the collection and strategically expanding the area of the building in key locations we managed to strike a balance between the needed resources and the desire to prioritize spaces for patrons. The designs consolidated bookshelves deep within the exterior and positioned gathering, study and reading spaces to the perimeter of the building, where they could benefit from natural light and views to the surrounding landscape.
Create flexible, hybrid environments that invite people to move easily from browsing shelves and exhibitions to grabbing a cup of coffee and reading quietly, to working on a group project.
In the renovated and expanded New City Library visitors will have clear sight lines to the public areas from the lobby and circulation desk. Thanks to the creative re-location of opaque, load-bearing interior walls and the insertion of light steel columns, the new design affords panoramic views across the split-level library – making navigation through the library clear and passive supervision of a large space far easier on a small group of librarians. Patrons will now discover that they can make their way easily from the café / gallery space to the reading area, to the stacks and group study rooms, to the maker space and the rooms dedicated to local history resources in one easy motion, and without needing wayfinding assistance from the staff.
Reinventing Modern Public Libraries
A public library design project can be transformational. A library can be a community event center, a tech hub, a living room, a bustling intersection, an information station, a center for well-being – a holistic vision of “community,” all under one roof. Each project is an opportunity to expand the definition of a library and create a space that reflects the unique needs and values of the place it serves.
At VMDO, we offer a collaborative partnership in discovering and realizing new possibilities for modern public libraries. We share our client’s commitment to lifelong learning and take seriously the opportunity to design buildings that will make an impact on a place for years to come. We understand the challenges and opportunities inherent to this project type and we have proven design expertise across the entire span of potential 21st-century library program elements. As the future brings with it more changes, we look forward to building more collaborative partnerships and working with our clients to revitalize our public libraries as convivial neighborhood places where everyone belongs and finds community.
Recent News
View All
Uplifting VMDO’s New Leadership in 2026
December 1, 2025

Designing for Communities
October 16, 2025








